
Project: The Number House
Location: Osaka, Japan
Designed by Matsunami Mitsutomo
Website: www.mma-design.com
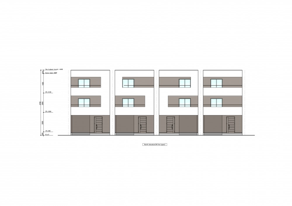
A simple idea can do miracles for your project, proof is in The Number House, work of Japan based Matsunami Mitsutomo. View more images with floor plans included after the jump:
Location: Osaka, Japan
Designed by Matsunami Mitsutomo
Website: www.mma-design.com
A simple idea can do miracles for your project, proof is in The Number House, work of Japan based Matsunami Mitsutomo. View more images with floor plans included after the jump:




















