
Project: Sinus House
Designed by Cebra
Location: Denmark
Website: www.cebra.info
This house is built on 1735 square feet area of clean grass. Beautiful Denmark meadow surrounds the house from all sides making it contemporary urban dot in the middle of nature. The whole house looks like a cut object because of smart using of exterior colors. For more info and images continue after the jump:
Designed by Cebra
Location: Denmark
Website: www.cebra.info
This house is built on 1735 square feet area of clean grass. Beautiful Denmark meadow surrounds the house from all sides making it contemporary urban dot in the middle of nature. The whole house looks like a cut object because of smart using of exterior colors. For more info and images continue after the jump:
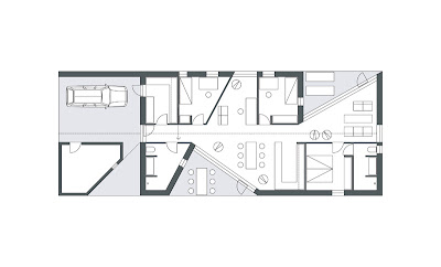
The main color is black but there are some cavities in the house painted in pure white. Inside, there is anything that usual family could possibly need and nothing more. Rooms aren’t very big but that is more than enough. The garage for one car is also part of the house. Unusual design and smart using of space are things which make the house interesting.
Source | Cebra & Digs Digs
Source | Cebra & Digs Digs
























