
Designed by GLR Arquitectos
Location: Monterrey, Mexico
Project Team: Diana Guerra, Eduardo Fuentes, Bernardo Chapa, Joaquín Jenis, Tomas Güereña
Website: www.glrarquitectos.com
Contemporary designed Torres House in Monterrey by GLR Arquitectos is embracing its natural surrounding in a very unique way. Continue for more images and description from the architects after the jump:







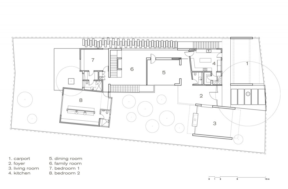
Inside, the entry hall merges into an area of contrasting materials consisting of Santo Tomas marble and volcanic stone walls. From this area there is a visual continuity with the rest of the house and with the garden that was left in its natural state as a small oak forest.


In the living room, conceived almost as a glass box, one can experience the view to the Sierra Madre peaks in the distance and the garden near by. Owing to its location within the mountain, where winters can get really cold, there is a fireplace for the family to gather around in the evenings.
From the dining room and the media room, one can access the roof terrace and enjoy the splendid views of the Sierra Madre as well as of the city of Monterrey. Here the musical background of the sounds of nature is in sharp contrast to the roar of the city below.
Photo: Jorge Taboada


















